Skip the navigation and jump to this page's content.

3493 Peter Street Windsor, Ontario

PROPERTY INFO

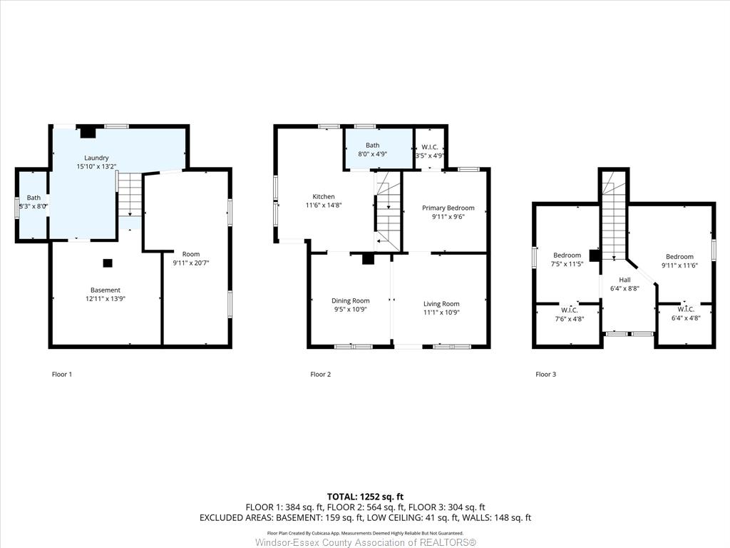
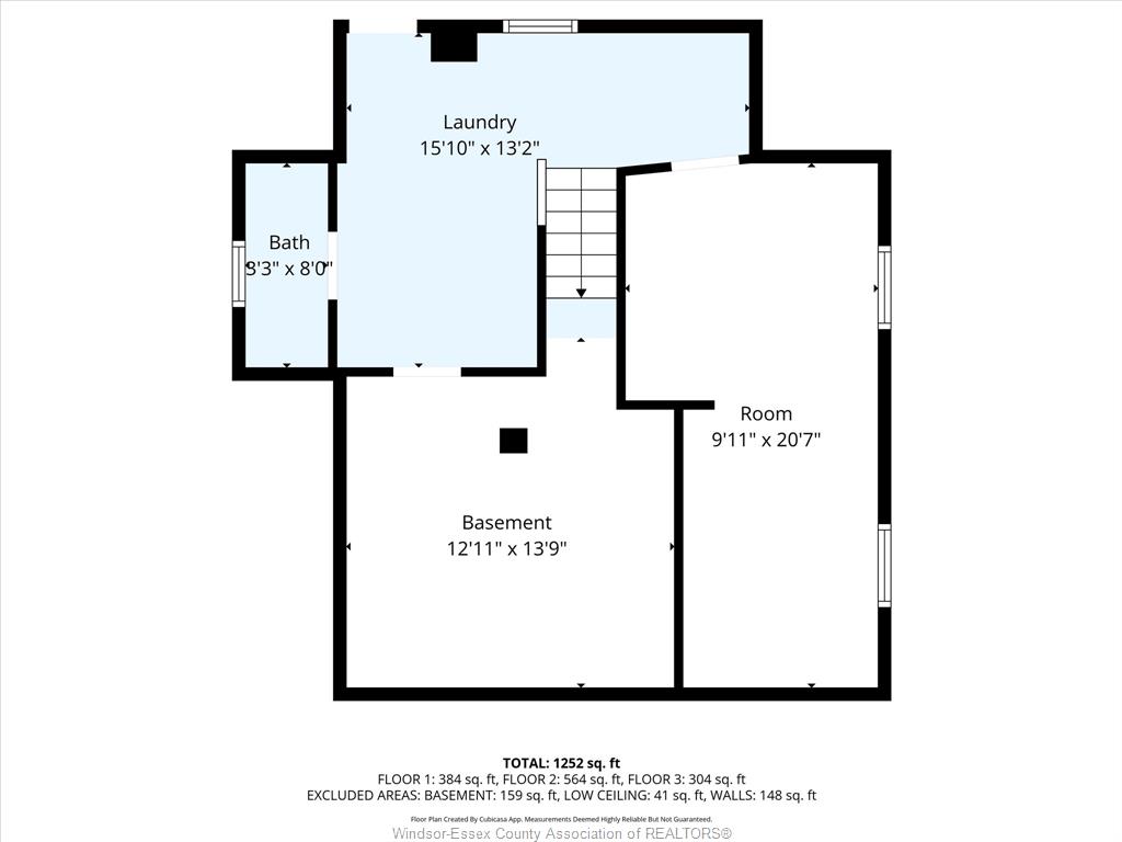
Welcome to 3493 Peter Street — a versatile and well-maintained home offering the perfect blend of comfortable living and income potential in a high-demand Windsor location. Featuring 3+1 bedrooms and 2 full bathrooms, this property offers a bright and functional main level with a spacious kitchen ideal for everyday living and entertaining. The finished basement with a grade entrance provides excellent flexibility — perfect for an in-law suite, student rental, or additional living space. Step outside to a fully fenced yard with a covered porch, creating the perfect space to relax or host family and friends. Side drive parking adds everyday convenience for homeowners or tenants alike. Located just minutes from the University of Windsor, parks, shopping, transit, and the U.S. border, this home is well positioned for families, first-time buyers, or investors looking to capitalize on strong rental demand. Whether you're looking to move in, generate income, or both — this is an opportunity you don’t want to miss.

PROPERTY SPECS

Price $349,900
City Windsor, Ontario
Bed / Bath 4 / 2 Full
Address 3493 PETER Street
Listing ID 26007285
Style 1 3/4 Storey
Construction Aluminum/Vinyl, Brick
Flooring Ceramic or Porcelain, Hardwood or Engineered Hrwd, Laminate
Type Residential
Status For Sale

EXTENDED FEATURES

Attachment Style Detached Subtype 1 3/4 Storey Driveway Side Drive, Single Drive Parking Other, See Remarks Amenities Fenced Yard, Playground Nearby, Shopping Nearby Ownership Freehold Rental Equipment Hot Water Tank Appliances Dishwasher, Dryer, Refrigerator, Stove, Washer Basement Full Basement Development Finished Foundation Block Heating / Cooling Central Air Conditioning, Forced Air, Furnace Heating Fuel Natural Gas Hot Water Tank Gas Utility Water Municipal Water Sewer Sanitary Date Listed Apr 7, 2026 Days on Market 1

Open House(s):

WHEN TYPE  
Sunday, April 12, 2026 1:00 PM - 3:00 PM
Grocery Stores
Schools
Banks
Restaurants
Health
Parks
Entertainment
Transit
Fire Station
Police



REQUEST MORE INFORMATION

Loading...