Skip the navigation and jump to this page's content.

1531 Blue Spring Drive Windsor, Ontario

PROPERTY INFO

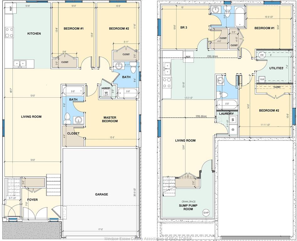
WELCOME TO 1531 BLUE SPRING DR. IN THE HEART OF WINDSOR. ROYALTY HOMES PRESENTS, TO BE BUILT(SUMMER CLOSING 2026), 1330 SQ FT RAISED RANCH COMPRISING OF 3 BEDROOMS AND 2 BATH, INCLUDING ENSUITE WITH SIDE ENTRANCE. OPEN CONCEPT LAYOUT WITH KITCHEN BAR AND WALK IN PANTRY, GRANITE/QUARTS COUNTERS THROUGH OUT. ENGINEERED HARDWOOD AND PORCELAIN TILE IN WET AREAS WITH UPGRADED TRIM AND FINISHES. LARGE FRONT PORCH, DOUBLE CAR GARAGE WITH INSIDE ENTRY. ROUGHED IN BASEMENT BATH/ KITCHEN FOR FUTURE FINISHING. ESTABLISHED NEIGHBOURHOOD, CLOSE TO DEVONSHIRE MALL, SCHOOLS, SHOPPING AND PARKS. SECURE YOUR UNIT TODAY, 2 REMAINING LOTS. FOR MORE INFO PLEASE EMAIL L/S.

PROPERTY SPECS

Price $699,999
City Windsor, Ontario
Bed / Bath 3 / 2 Full
Address 1531 BLUE SPRING Drive
Listing ID 25029352
Square Footage 1330
Style Raised Ranch
Construction Aluminum/Vinyl, Brick
Roof Asphalt Shingle
Flooring Ceramic or Porcelain, Hardwood or Engineered Hrwd
Type Residential
Status For Sale

EXTENDED FEATURES

Attachment Style Detached Subtype Raised Ranch Approx. Square Footage 1330 Outdoor Features Covered Porch, Walking Trails Nearby Driveway Front Drive, Paved Drive Parking Double Garage, Attached Garage, Inside Entry Amenities Playground Nearby, Shopping Nearby Ownership Freehold Rental Equipment Hot Water Tank Basement Walk Out Basement Development Unfinished Foundation Concrete Heating / Cooling Central Air Conditioning, Furnace, Heat Recovery Ventilation (HRV) Heating Fuel Natural Gas Hot Water Tank Gas Utility Water Municipal Water Sewer Sanitary Date Listed Nov 21, 2025 Days on Market 68
Grocery Stores
Schools
Banks
Restaurants
Health
Parks
Entertainment
Transit
Fire Station
Police



REQUEST MORE INFORMATION

Loading...