Skip the navigation and jump to this page's content.

1637 Drouillard Windsor, Ontario

$879,999
Virtual Your  Download
Listing Brochure  

PROPERTY INFO

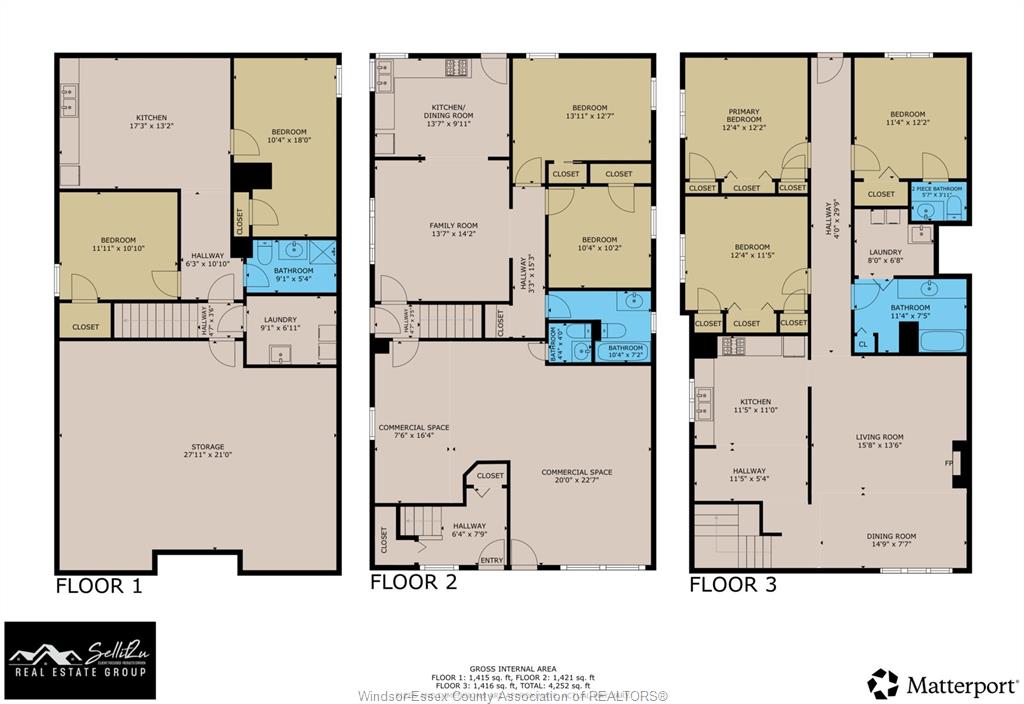
Incredible Investment Opportunity! 1637 Drouillard is a legal triplex with a bonus mother-in-law suite, offering four vacant units ready for investors to set their own rents. This versatile property features one commercial unit and three residential units, including a spacious 3-bedroom, 1.5-bath unit with ensuite laundry, plus two 2-bedroom, 1-bath units. Many recent upgrades including newer furnaces, A/C units, windows, and solar panels that generate additional income. With a potential rental income of $6,000/month, this is a turn-key opportunity for any savvy investor. Don't miss your chance to add this cash-flowing property to your portfolio! Taking offers as they come. Seller reserves the right to accept or decline any offers.

PROPERTY SPECS

Price $879,999
City Windsor, Ontario
Address 1637 DROUILLARD
Listing ID 25025539
Construction Aluminum/Vinyl, Brick
Roof Asphalt Shingle
Flooring Ceramic or Porcelain, Cushion or Lino or Vinyl, Laminate, Parquet
Type Multi-Family
Status For Sale

EXTENDED FEATURES

Subtype Triplex Ownership Freehold Building Amenities Balcony/Deck/Patio, Energy Efficient, Fence, Public Transportation Nearby Foundation Block Heating / Cooling Central Air Conditioning, Forced Air, Furnace Heating Fuel Natural Gas Hot Water Tank Gas Utility Water Municipal Water Sewer Sanitary Date Listed Oct 7, 2025 Days on Market 112 Parking Concrete, Paved
Grocery Stores
Schools
Banks
Restaurants
Health
Parks
Entertainment
Transit
Fire Station
Police



REQUEST MORE INFORMATION

Loading...