Skip the navigation and jump to this page's content.

4239 Lakeshore Road Plympton-Wyoming, Ontario

$469,900
2 Beds
  1 Full
Virtual Your  Download
Listing Brochure  

PROPERTY INFO

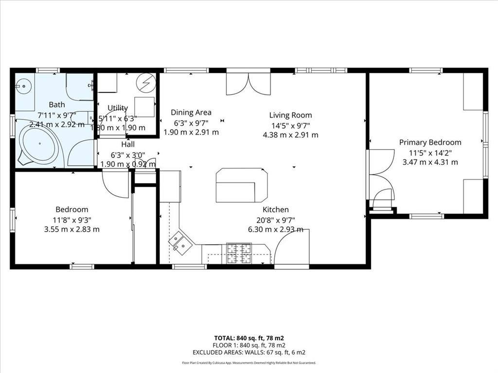
Welcome to this charming 4-season cottage or family home, perfectly situated on nearly an acre surrounded by mature trees and the beauty of nature. Featuring 2 bedrooms and 1 bathroom, this inviting property offers peace and privacy while still being just a short walk to Lake Huron. Enjoy deeded beach access across the road on George Street, ideal for relaxing summer days by the water. Fully renovated in 2015, the home combines cozy cottage character with modern comfort—bright, updated, and move-in ready. The spacious lot provides plenty of room to unwind, garden, or gather around the fire pit under the stars. A detached shed offers extra storage for outdoor equipment or beach gear. Only a 15-minute drive to Sarnia, this property offers the perfect balance of tranquility and convenience. Whether you're seeking a year-round residence or a peaceful getaway, this home delivers an ideal lakeside lifestyle.

PROPERTY SPECS

Price $469,900
City Plympton-Wyoming, Ontario
Bed / Bath 2 / 1 Full
Address 4239 LAKESHORE Road
Listing ID 25028237
Style Bungalow
Construction Wood
Roof Asphalt Shingle
Flooring Laminate
Type Residential
Status For Sale

EXTENDED FEATURES

Attachment Style Detached Subtype Bungalow Acreage 0.719 Inclusions fridge, stove, dishwasher, built in microwave, hot tub, washer and dryer all furniture with note of the exceptions Driveway Gravel Drive Parking None Ownership Freehold Rental Equipment None Basement Crawl Space Foundation Block Heating / Cooling Central Air Conditioning, Forced Air Heating Fuel Natural Gas Hot Water Tank Gas Utility Water Municipal Water Sewer Sanitary Date Listed Nov 10, 2025 Days on Market 25
Grocery Stores
Schools
Banks
Restaurants
Health
Parks
Entertainment
Transit
Fire Station
Police



REQUEST MORE INFORMATION

Loading...