Skip the navigation and jump to this page's content.

5969 Townsend Line Unit# 6 Lambton Shores, Ontario

$449,900
2 Beds
  1 Full / 1 Half
 Download
Listing Brochure  

PROPERTY INFO

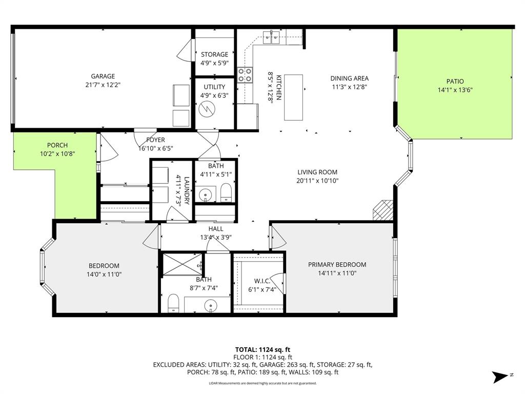
Welcome to Townsend Meadows, a 55+ exclusive life lease community located on the edge of Forest-offering the perfect blend of convenience and peace of mind. Enjoy low-maintenance living with a monthly occupancy fee, which includes lawn care, snow removal, and use of the community hall, giving you more time to enjoy the lifestyle you deserve.This bright and inviting 2-bedroom, 1.5-bath home offers 1,175 sq. ft. of thoughtfully designed living space. The open-concept layout features a spacious kitchen and dining area that flows into a comfortable living room-perfect for entertaining or relaxing. The attached single-car garage provides convenience and additional storage, while the concrete patio with gas connections offers the ideal space for outdoor dining or a cozy fire table. Set on a peaceful lot backing onto open farmland, this home offers beautiful country views and added privacy with no rear neighbours. Experience comfortable, low-maintenance living in a welcoming community designed to let you relax and enjoy every moment.

PROPERTY SPECS

Price $449,900
City Lambton Shores, Ontario
Bed / Bath 2 / 1 Full, 1 Half
Address 5969 TOWNSEND Line Unit# 6
Listing ID 26003458
Style Bungalow
Construction Brick
Roof Asphalt Shingle
Flooring Cushion or Lino or Vinyl, Laminate
Type Residential
Status For Sale

EXTENDED FEATURES

Subtype Bungalow Inclusions Fridge, Stove, Dishwasher, Washer, Dryer, Microwave, Freezer and Fridge in Garage Driveway Concrete Drive Parking Single Garage, Attached Garage Ownership Leasehold Rental Equipment Hot Water Tank (Owned) Appliances Dishwasher, Dryer, Freezer, Microwave, Refrigerator, Stove, Washer Basement None Foundation Concrete Heating / Cooling Boiler, Floor Heat Heating Fuel Natural Gas Hot Water Tank Gas Utility Water Municipal Water Sewer Sanitary Fireplace Gas Direct Vent Date Listed Feb 19, 2026 Days on Market 25
Grocery Stores
Schools
Banks
Restaurants
Health
Parks
Entertainment
Transit
Fire Station
Police



REQUEST MORE INFORMATION

Loading...