Skip the navigation and jump to this page's content.

5 Hyland Drive Blenheim, Ontario

PROPERTY INFO

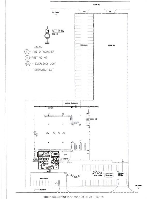
For Lease – Prime Industrial Facility in Blenheim. This outstanding property offers over 38,000 sq. ft. of versatile space, featuring 6,400 sq. ft. of office area and more than 32,000 sq. ft. of shop and warehouse space. Situated on 3.55 acres, the site includes a fully fenced and paved laydown yard, ideal for secure outdoor storage and heavy vehicle maneuvering. The building boasts 20–24 ft. ceiling heights, 2 truck-level docks, and 4 grade-level doors to ensure efficient operations. With 400-amp electrical service, the facility is well equipped to handle demanding industrial requirements. Conveniently located in the Town of Blenheim, the property provides easy access to Highway 401 and major arterial routes, making it an excellent choice for a wide range of industrial and commercial uses. This is a rare opportunity to lease a high-quality industrial space in a prime Southwestern Ontario location. Seller will sub-divide office space from warehouse area.

PROPERTY SPECS

Lease $8
City Blenheim, Ontario
Address 5 HYLAND Drive
Listing ID 25025028
Type Industrial/Commercial
Status For Lease

EXTENDED FEATURES

Attachment Style Free Standing Subtype Industrial, Investment Property, Office(s), Other, See Remarks, Warehouse Approx. Square Footage 38460 Acreage 3.550 Inclusions Other, See Remarks Parking On Site Ownership Freehold Heating / Cooling Central Air Conditioning, Forced Air Heating Fuel Natural Gas Utility Power PHASE Utility Water Municipal Water Sewer Sanitary Date Listed Oct 1, 2025 Days on Market 163
Grocery Stores
Schools
Banks
Restaurants
Health
Parks
Entertainment
Transit
Fire Station
Police



REQUEST MORE INFORMATION

Loading...